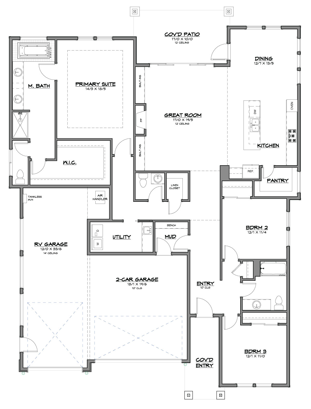
Welcome to luxury living in Eagle, Idaho. The Richmond RV plan blends modern, organic design with high-end features, perfectly suited for Idaho lifestyles. With 3 bedrooms, 2.5 bathrooms, and a thoughtfully designed ranch-style floor plan, this single level homes offers both comfort and convenience.
The highlight of this home is the wood-panelled exterior with stone highlights, as well as a generous 2-car garage complemented by a 40-foot RV bay. This expansive garage features 14-foot ceilings, electric vehicle charging, and smart garage door openers operable from your phone, perfect for RVs, boats, or extra storage.
Inside is an expansive great room that boasts 12-foot ceilings, filling the space with natural light, and opens seamlessly to the gourmet kitchen. The chef’s kitchen showcases a large island with a built-in sink, custom cabinetry, a spacious walk-in pantry, and a dedicated dining space with access to a covered patio.
The Primary suite in this home features 10’ coffered ceilings and a spacious primary suite with mudset tile shower, dual sinks vanity, soaking tub, and large walk-in closet with painted wood shelving. Enjoy indoor-outdoor living with a covered patio overlooking the fully fenced and landscaped backyard.
From luxury finishes to functional design, this home is built for modern living, whether that means entertaining, relaxing, or storing your RV in style.
Millstone Farm is a brand new community located near the Boise Foothills and minutes from Hwy 16, Eagle Road, and the Downtown Eagle. Less than 10 minutes from Eagle Island State Park, this expansive Boise development features a resort style pool, beautiful walking trails, pickleball, tennis, and basketball courts, a real sand volleyball court, dog park, family friendly playground, and walking trails.
Community Address: 519 Triumph Drive Middleton, ID 83644
Phone: (208) 891-7082
Contact:Â [email protected]
From I-84 East:
From I-84 West:
Charity Sigler
Idaho Sales Associate
Complete the form below and a member of our team will contact you shortly to confirm a good time for you.